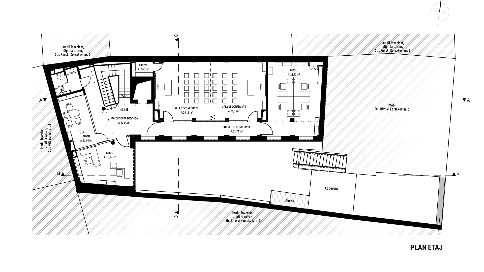
Situata intr-o zona emblematica din centrul Sibiului, cladirea de pe strada Rimski Korsakov nr. 5 a beneficiat de reabilitare, recompartimentare si modernizare completa, avand o deosebita grija pentru respectarea sigurantei, a confortului si indeplinind cele mai inalte standarde in ceea ce priveste performantele energetice superioare. Toate acestea au avut la baza respectarea patrimoniului local, dar folosing sisteme si materiale de constructii de inalta calitate.








